503-632-2862     ●     1-800-698-9144

RETURN TO SERVICES

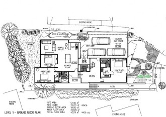
CONSTRUCTION DOCUMENTS

















 

  BENTHIN DESIGN GROUP LLC     SERVICES/CONSTRUCTION DOCUMENTS